วัดหงส์รัตนาราม ราชวรวิหาร
วัดหงส์รัตนาราม ราชวรวิหาร ตั้งอยู่ ณ ถนนวังเดิม แขวงวัดอรุณ เขตบางกอกใหญ่ กรุงเทพมหานคร เป็นพระอารามหลวง ชั้นโท ชนิดราชวรวิหาร ตั้งอยู่ฝั่งเหนือของคลองบางกอกใหญ่ เป็นวัดโบราณที่สร้างขึ้นตั้งแต่สมัยกรุงศรีอยุธยา เดิมชื่อว่า วัดเจ้าสัวหง หรือวัดเจ้าขรัวหง ตามชื่อเศรษฐีจีนผู้สร้างวัด เมื่อราวปีพุทธศักราช ๒๓๑๔ สมเด็จพระเจ้ากรุงธนบุรี โปรดเกล้าฯ ให้บูรณปฏิสังขรณ์และขยายอาณาเขตให้กว้างใหญ่ขึ้น พระราชทานนามใหม่ว่า วัดหงส์อาวาสวิหาร ครั้นถึงรัชสมัยพระบาทสมเด็จพระพุทธยอดฟ้าจุฬาโลก รัชกาลที่ ๑ ได้เปลี่ยนชื่อวัดเป็น วัดหงส์อาวาสบวรวิหาร และในรัชสมัยพระบาทสมเด็จพระพุทธเลิศหล้านภาลัย รัชกาลที่ ๒ ได้เปลี่ยนชื่อวัดเป็น วัดหงส์อาวาสวรวิหาร พระบาทสมเด็จพระนั่งเกล้าเจ้าอยู่หัว รัชกาลที่ ๓ พร้อมด้วยสมเด็จพระศรีสุริเยนทราบรมราชินี ในรัชกาลที่ ๔ ขณะดำรงพระอิสรยยศเป็นเจ้าฟ้าหญิงบุญรอด และพระบาทสมเด็จพระปิ่นเกล้าเจ้าอยู่หัว ขณะดำรงพระอิสริยยศเป็นสมเด็จพระเจ้าน้องยาเธอ เจ้าฟ้ากรมขุนอิศเรศรังสรรค์ ทรงบูรณปฏิสังขรณ์พระอาราม แต่ก็เสด็จสวรรคตและสิ้นพระชนม์เสียก่อนที่การบูรณปฏิสังขรณ์จะแล้วเสร็จ พระบาทสมเด็จพระจอมเกล้าเจ้าอยู่หัว รัชกาลที่ ๔ จึงทรงรับพระราชภาระในการบูรณปฏิสังขรณ์จนแล้วเสร็จสมบูรณ์ ต่อมาในปีพุทธศักราช ๒๔๕๘ ในรัชสมัยพระบาทสมเด็จพระมงกุฎเกล้าเจ้าอยู่หัว รัชกาลที่ ๖ ได้มีการเปลี่ยนชื่อพระอารามเป็น วัดหงส์รัตนาราม ดังในปัจจุบัน
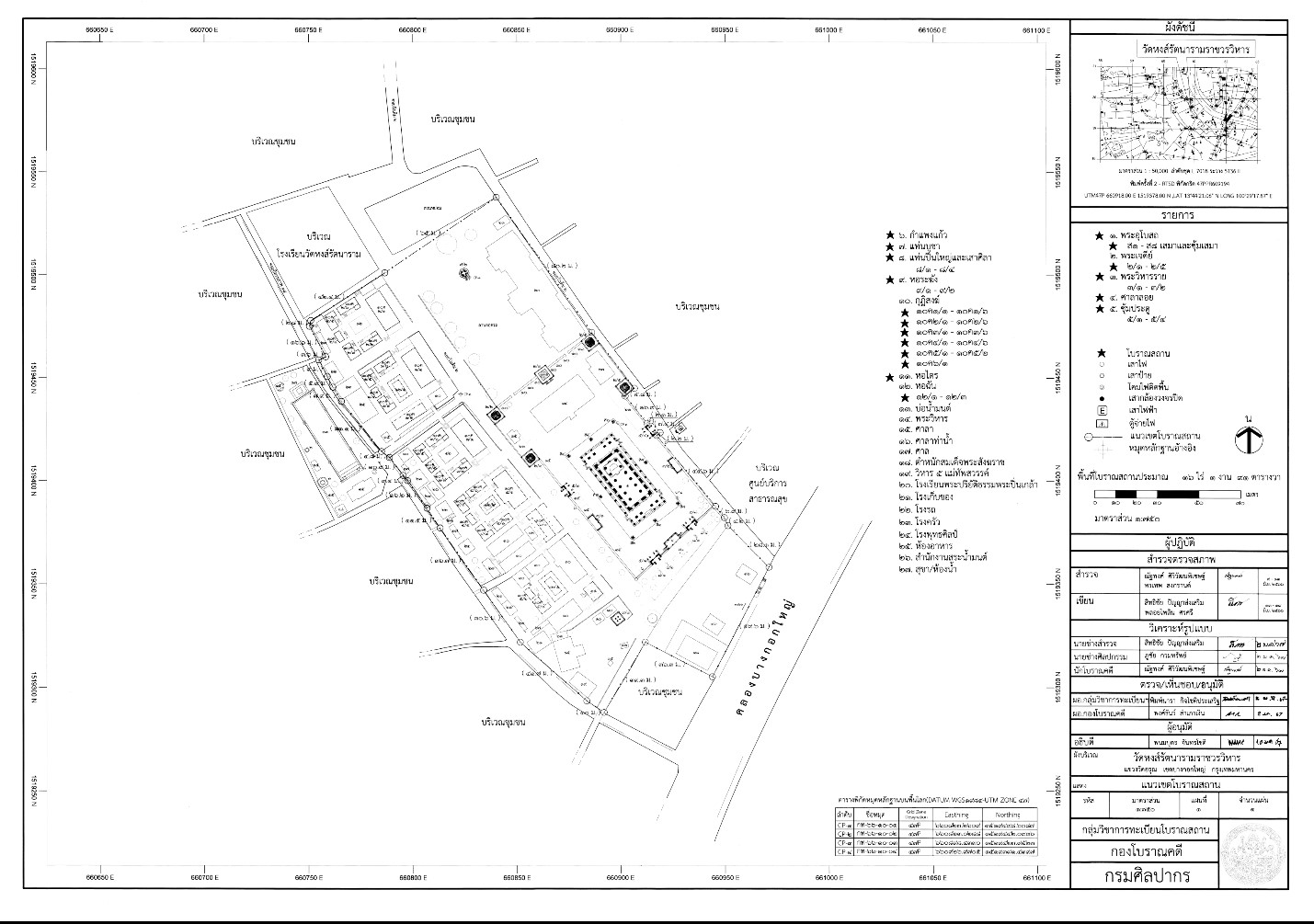
โบราณวัตถุสถานสำคัญ
๑. พระอุโบสถ
สร้างสมัยกรุงธนบุรี และบูรณะสมัยรัชกาลที่ ๓ ต่อเนื่องถึงสมัยรัชกาลที่ ๔ ทิศหลักหันไปทางด้านทิศใต้ เป็นอาคารก่ออิฐถือปูน หลังคา ๒ ซ้อน ๒ ตับ เครื่องลำยองปิดทองประดับกระจก มีพะไลรองรับด้วยเสาและทวยโดยรอบ หน้าบันไม้แกะสลักปิดทองประดับกระจกรูปเทวดาทรงหงส์ ๓ เศียร ล้อมรอบด้วยลายกนกและลายก้านต่อดอก หน้าบันชั้นลด ทำเป็นช่องสี่เหลี่ยมผืนผ้า ๒ ช่อง ภายในมีประติมากรรมหงส์ปูนปั้นประดับกระเบื้องเคลือบ ซุ้มประตูและหน้าต่างประดับลวดลายปูนปั้นลายเทศศิลปะจีนผสมตะวันตก บานประตูและหน้าต่างด้านนอกแกะสลักรูปหงส์และลายพรรณพฤกษา บานประตูด้านบนเป็นลายพระราชลัญจกรในพระบาทสมเด็จพระจอมเกล้าเจ้าอยู่หัว และพระบาทสมเด็จพระปิ่นเกล้าเจ้าอยู่หัว บานประตูและหน้าต่างด้านในเขียนภาพจิตรกรรมเครื่องบูชา จิตรกรรมฝาผนังภายในอาคารด้านหลังพระประธานเขียนลายดอกไม้ร่วง ส่วนด้านอื่นๆ เขียนภาพพุทธประวัติ เสาร่วมในเขียนลายดอกลอยก้านแย่ง ดาวเพดานลายทองบนพื้นแดง เหนือกรอบประตูและหน้าต่างมีภาพจิตรกรรมสีฝุ่นในกรอบกระจก เรื่อง รัตนพิมพวงศ์ (ตำนานพระแก้วมรกต) ฝีมือช่างสมัยรัชกาลที่ ๓ - ๔ ซุ้มเสมาเป็นศิลปะผสมระหว่างจีนและยุโรป
พระประธาน ปางมารวิชัย พุทธศิลป์สมัยต้นรัตนโกสินทร์ พระพักตร์เหลี่ยม พระรัศมีเปลว นิ้วพระหัตถ์ทั้ง ๔ ยาวเสมอกัน สังฆาฏิแผ่นใหญ่อยู่กึ่งกลางพระอุระยาวจรดพระนาภี ประดิษฐานเหนือรัตนบัลลังก์ ใต้เศวตฉัตร ๗ ชั้น มีพระสาวกขนาบ ๒ ข้าง ใต้ฐานพระประธานบรรจุพระบรมอัฐิพระบาทสมเด็จพระปิ่นเกล้าเจ้าอยู่หัว เบื้องหน้าพระประธานประดิษฐาน พระแสน พระพุทธรูปสำริด นวโลหะ ปางมารวิชัย ขัดสมาธิราบ ศิลปะล้านช้าง ตามตำนานกล่าวว่าพระครูโพนเสม็ด ชาวเมืองพาน ผู้ก่อตั้งเมืองแตงและนครจำปาศักดิ์ หล่อขึ้น ณ นครจำปาศักดิ์ และกรุงพนมเปญ แล้วนำมาประกอบเป็นองค์พระ ซึ่งมีสีของโลหะในแต่ละส่วนที่แตกต่างกัน รอบพระรัศมีฝังแก้วผลึก ๑๕ เม็ด แต่เดิมประดิษฐานอยู่ที่เมืองแตง ในอาณาจักรล้านช้าง ปัจจุบันคือจังหวัดสตรึงเตรง ประเทศกัมพูชา เมื่อปีพุทธศักราช ๒๔๐๑ พระบาทสมเด็จพระปิ่นเกล้าเจ้าอยู่หัว ขอพระราชทานให้ข้าหลวงนำท้องตราไปอัญเชิญลงมาประดิษฐาน ณ วัดหงส์รัตนาราม พระบาทสมเด็จพระจอมเกล้าเจ้าอยู่หัว โปรดเกล้าฯ ให้สร้างฐานพระที่ประดิษฐานพระแสนตามแบบสกุลช่างวังหน้า และทรงรับปิดทองฐานพระส่วนที่ยังค้างอยู่
๒. พระวิหาร
เดิมเป็นพระวิหารร้าง ซึ่งได้รับการบูรณปฏิสังขรณ์ขึ้นใหม่ เป็นอาคารก่ออิฐถือปูน ตั้งอยู่ในแนวแกนตะวันออกและตะวันตก ขวางกับแนวพระอุโบสถ มีประตูทางเข้าทางด้านข้างหรือทิศใต้ ซึ่งเป็นทิศที่ตั้งของพระอุโบสถ มีลักษณะทางสถาปัตยกรรมคล้ายคลึงกับพระอุโบสถ หลังคา ๒ ซ้อน ๒ ตับ มีพะไลรอบรองรับด้วยเสาและทวย เครื่องลำยองปิดทองประดับกระจก หน้าบันและหน้าบันชั้นลดเป็นไม้แกะสลักปิดทองประดับกระจกและปูนปั้นลายหงส์เช่นเดียวกับพระอุโบสถ ซุ้มประตูและหน้าต่างเป็นลวดลายปูนปั้นปิดทองลายเทศ บานประตูและหน้าต่างด้านนอกเป็นลายรดน้ำภาพแจกัน ภายในประดิษฐานพระพุทธรูป หลวงพ่อทองคำ หรือหลวงพ่อสุข ศิลปะสุโขทัย ปางมารวิชัย เนื้อทองผสมนวโลหะ ซึ่งแต่เดิมถูกฉาบหุ้มไว้ด้วยปูน เมื่อราวปีพุทธศักราช ๒๔๙๙ พระสุขุมธรรมาจารย์ อดีตเจ้าอาวาส พบรอยปูนกะเทาะบริเวณอุระและเห็นว่าภายในเป็นเนื้อโลหะสีทอง จึงกะเทาะปูนที่หุ้มออก มีจารึกระบุว่า สมเด็จท้าวพระยาศรียศราช สร้างถวายเป็นพุทธบูชา เมื่อปีพุทธศักราช ๑๙๖๓
๓. หอไตร
เรือนไทย ยกใต้ถุนสูง หลังคาทรงจั่ว ฝาปะกนเขียนลายรดน้ำปิดทอง บานประตูไม้แกะสลักลายเครือเถา ฝีมือช่างสมัยรัตนโกสินทร์
๔. สระน้ำมนต์
สร้างขึ้นในสมัยกรุงธนบุรี มีขนาดยาว ๒๖ วา กว้าง ๖ วา ลึก ๑ วา สมเด็จพระเจ้ากรุงธนบุรี โปรดเกล้าฯ ให้อาราธนาสมเด็จพระสังฆราช (ดี) สมเด็จพระสังฆราชองค์ที่ ๑ แห่งกรุงธนบุรี พร้อมด้วยสมเด็จพระสังฆราช (ชื่น) สมเด็จพระสังฆราชองค์ที่ ๓ แห่งกรุงธนบุรี ขณะที่ทรงเป็นพระโพธิวงศ์ เจ้าอาวาสในสมัยนั้น มาประกอบพิธีปลุกเสกลงอาคม ตามตำนานกล่าวว่าหินอาคมในสระน้ำมนต์นี้ ได้รับมาพระเถราจารย์วัดประดู่ทรงธรรม พระนครศรีอยุธยา เมื่อโยนลงไปในสระน้ำได้กลายเป็นก้อนหินขนาดใหญ่ สมเด็จพระเจ้ากรุงธนบุรีเสด็จมาทรงสรงน้ำมนต์ในพระราชพิธีสำคัญทุกครั้ง ต่อมาในสมัยรัตนโกสินทร์ พระบาทสมเด็จพระพุทธยอดฟ้าจุฬาโลก โปรดเกล้าฯ ให้อาราธนาสมเด็จพระสังฆราช (สุก ไก่เถื่อน) มาปลุกเสกอาคมตามทิศทั้ง ๔ ของสระน้ำมนต์ ให้มีฤทธานุภาพในด้านต่างๆ ได้แก่ ทิศตะวันออก ดีทางเมตตามหานิยม, ทิศใต้ ดีทางมหาลาภและค้าขาย, ทิศเหนือ ดีทางบำบัดทุกข์ โศก โรคภัย และทิศตะวันตก ดีทางแคล้วคลาดอยู่ยงคงกระพันชาตรี
สร้างขึ้นในสมัยกรุงธนบุรี มีขนาดยาว ๒๖ วา กว้าง ๖ วา ลึก ๑ วา สมเด็จพระเจ้ากรุงธนบุรี โปรดเกล้าฯ ให้อาราธนาสมเด็จพระสังฆราช (ดี) สมเด็จพระสังฆราชองค์ที่ ๑ แห่งกรุงธนบุรี พร้อมด้วยสมเด็จพระสังฆราช (ชื่น) สมเด็จพระสังฆราชองค์ที่ ๓ แห่งกรุงธนบุรี ขณะที่ทรงเป็นพระโพธิวงศ์ เจ้าอาวาสในสมัยนั้น มาประกอบพิธีปลุกเสกลงอาคม ตามตำนานกล่าวว่าหินอาคมในสระน้ำมนต์นี้ ได้รับมาพระเถราจารย์วัดประดู่ทรงธรรม พระนครศรีอยุธยา เมื่อโยนลงไปในสระน้ำได้กลายเป็นก้อนหินขนาดใหญ่ สมเด็จพระเจ้ากรุงธนบุรีเสด็จมาทรงสรงน้ำมนต์ในพระราชพิธีสำคัญทุกครั้ง ต่อมาในสมัยรัตนโกสินทร์ พระบาทสมเด็จพระพุทธยอดฟ้าจุฬาโลก โปรดเกล้าฯ ให้อาราธนาสมเด็จพระสังฆราช (สุก ไก่เถื่อน) มาปลุกเสกอาคมตามทิศทั้ง ๔ ของสระน้ำมนต์ ให้มีฤทธานุภาพในด้านต่างๆ ได้แก่ ทิศตะวันออก ดีทางเมตตามหานิยม, ทิศใต้ ดีทางมหาลาภและค้าขาย, ทิศเหนือ ดีทางบำบัดทุกข์ โศก โรคภัย และทิศตะวันตก ดีทางแคล้วคลาดอยู่ยงคงกระพันชาตรี

รูปสระน้ำมนต์
๕. ศาลสมเด็จพระเจ้าตากสิน
ด้วยสมเด็จพระเจ้ากรุงธนบุรี ทรงอุปถัมภ์วัดหงส์รัตนาราม ประชาชนจึงได้ร่วมกันสร้างศาลเพื่อสักการะบูชาดวงพระวิญญาณขึ้น ณ ริมคลองบางหลวง ทางด้านทิศตะวันตกของพระอุโบสถ
ด้วยสมเด็จพระเจ้ากรุงธนบุรี ทรงอุปถัมภ์วัดหงส์รัตนาราม ประชาชนจึงได้ร่วมกันสร้างศาลเพื่อสักการะบูชาดวงพระวิญญาณขึ้น ณ ริมคลองบางหลวง ทางด้านทิศตะวันตกของพระอุโบสถ

รูปศาลสมเด็จพระเจ้าตากสิน
กรมศิลปากรประกาศขึ้นทะเบียนโบราณสถาน
๑. กำหนดบัญชีโบราณวัตถุสถาน ในราชกิจจานุเบกษา เล่ม ๖๖ ตอนที่ ๖๔ วันที่ ๒๒ พฤศจิกายน ๒๔๙๒
๒. ขึ้นทะเบียนโบราณสถานและกำหนดเขตที่ดินโบราณสถาน ในราชกิจจานุเบกษา เล่มที่ ๑๔๑ ตอนพิเศษ ๓๔ ง วันที่ ๕ กุมภาพันธ์ ๒๕๖๗


(จำนวนผู้เข้าชม 19939 ครั้ง)
สงวนลิขสิทธิ์ © 2563 กรมศิลปากร. กระทรวงวัฒนธรรม
-
นโยบายเว็บไซต์ |
มาตรฐาน |
นโยบายการคุ้มครองข้อมูลส่วนบุคคล
เว็บท่ากรมศิลปากร