วัดอินทารามวรวิหาร
วัดอินทาราม ตั้งอยู่ ณ ถนนเทอดไท แขวงบางยี่เรือ เขตธนบุรี กรุงเทพมหานคร เป็นพระอารามหลวงชั้นตรี ชนิดวรวิหาร ตั้งอยู่ฝั่งทิศใต้ของคลองบางกอกใหญ่ (คลองบางหลวง) เป็นวัดโบราณที่มีมาตั้งแต่สมัยกรุงศรีอยุธยา เดิมชื่อว่า วัดบางยี่เรือนอก, วัดบางยี่เรือไทย หรือวัดสวนพลู สมเด็จพระเจ้ากรุงธนบุรีทรงปฏิสังขรณ์ทั้งพระอาราม และเสด็จมาทรงศีลบำเพ็ญพระกรรมฐาน อีกทั้งยังเป็นพระอารามที่ประดิษฐานพระบรมศพ ถวายพระเพลิงและบรรจุพระบรมอัฐิของสมเด็จพระเจ้ากรุงธนบุรี พระอารามแห่งนี้ได้รับการปฏิสังขรณ์ครั้งใหญ่ในรัชสมัยพระบาทสมเด็จพระนั่งเกล้าเจ้าอยู่หัว รัชกาลที่ ๓ โดยพระยาศรีสหเทพ (เพ็ง ศรีเพ็ญ) ปลัดบาญชี กรมมหาดไทย และได้รับพระราชทานนามพระอารามว่า วัดอินทาราม
โบราณวัตถุสถานสำคัญ
ภายในวัดอินทาราม มีการจัดแบ่งพื้นที่ในเขตพุทธาวาส เป็น ๒ กลุ่ม ได้แก่
๑. กลุ่มพระอุโบสถเดิม
พระอุโบสถเดิม เป็นอาคารก่ออิฐถือปูน แผนผังรูปสี่เหลี่ยมผืนผ้า หลังคาทรงกระเท่เซร ไม่มีไขราหน้าจั่ว มีพะไลหน้าและหลังรองรับด้วยเสาสี่เหลี่ยม เครื่องบนสันหลังคาและเชิงชายประดับด้วยเครื่องถ้วยเคลือบ หน้าบันประดับด้วยเครื่องถ้วยลายก้านแย่งแบบพระราชนิยมสมัยรัชกาลที่ ๓ แต่เดิมไม่มีหน้าต่าง อดีตเจ้าอาวาส พระทักษิณคณิสร (สาย) ได้ขอพระบรมราชานุญาตบูรณะโดยการลดเสา-เจาะผนังทำช่องหน้าต่าง ภายในอาคารประดิษฐานพระพุทธรูปฉลองพระองค์สมเด็จพระเจ้ากรุงธนบุรี ปางมารวิชัย ศิลปะอยุธยา ซึ่งบรรจุพระบรมราชสรีรังคารสมเด็จพระเจ้ากรุงธนบุรีไว้ใต้ฐานพระ บนฐานชุกชียังประดิษฐานพระพุทธรูปปางต่างๆ สมัยอยุธยาและรัตนโกสินทร์ ซึ่งอดีตเจ้าอาวาสได้รวบรวมมาจากที่ต่างๆ และใต้ฐานชุกชีบรรจุอัฐิของสกุลอินทรโยธิน และพิชเยนทรโยธิน ซึ่งเป็นสายสกุลผู้สืบเชื้อสายจากสมเด็จพระเจ้ากรุงธนบุรี
พระอุโบสถเดิม เป็นอาคารก่ออิฐถือปูน แผนผังรูปสี่เหลี่ยมผืนผ้า หลังคาทรงกระเท่เซร ไม่มีไขราหน้าจั่ว มีพะไลหน้าและหลังรองรับด้วยเสาสี่เหลี่ยม เครื่องบนสันหลังคาและเชิงชายประดับด้วยเครื่องถ้วยเคลือบ หน้าบันประดับด้วยเครื่องถ้วยลายก้านแย่งแบบพระราชนิยมสมัยรัชกาลที่ ๓ แต่เดิมไม่มีหน้าต่าง อดีตเจ้าอาวาส พระทักษิณคณิสร (สาย) ได้ขอพระบรมราชานุญาตบูรณะโดยการลดเสา-เจาะผนังทำช่องหน้าต่าง ภายในอาคารประดิษฐานพระพุทธรูปฉลองพระองค์สมเด็จพระเจ้ากรุงธนบุรี ปางมารวิชัย ศิลปะอยุธยา ซึ่งบรรจุพระบรมราชสรีรังคารสมเด็จพระเจ้ากรุงธนบุรีไว้ใต้ฐานพระ บนฐานชุกชียังประดิษฐานพระพุทธรูปปางต่างๆ สมัยอยุธยาและรัตนโกสินทร์ ซึ่งอดีตเจ้าอาวาสได้รวบรวมมาจากที่ต่างๆ และใต้ฐานชุกชีบรรจุอัฐิของสกุลอินทรโยธิน และพิชเยนทรโยธิน ซึ่งเป็นสายสกุลผู้สืบเชื้อสายจากสมเด็จพระเจ้ากรุงธนบุรี

รูปพระอุโบสถเดิม
เบื้องหน้าพระอุโบสถเดิม มีพระเจดีย์ย่อมุมไม้สิบสอง ๒ องค์ องค์ทางด้านทิศตะวันออกบรรจุพระบรมอัฐิสมเด็จพระเจ้ากรุงธนบุรี เรือนธาตุรองรับด้วยฐานบัวปากระฆังทรงบัวกลุ่มและฐานสิงห์ ปล้องไฉนทรงและบัวกลุ่ม ส่วนองค์ทางด้านทิศตะวันตกบรรจุพระอัฐิสมเด็จพระอัครมเหสี
พระวิหารน้อย หรือพระวิหารสมเด็จพระเจ้าตากสินมหาราช ตั้งอยู่ทางด้านทิศตะวันออกของพระอุโบสถเดิม มีแผนผังเป็นรูปสี่เหลี่ยมจัตุรัส หลังคาทรงกระเท่เซร ไม่มีไขราหน้าจั่ว มีพะไลรอบรองรับด้วยเสาสี่เหลี่ยม หน้าบันปูนปั้นประดับเครื่องถ้วยและกระเบื้องเคลือบลายก้านต่อดอก ภายในอาคารตรงกลางประดิษฐานพระพุทธรูปปางต่างๆ ท้ายวิหารทางทิศตะวันตกประดิษฐานพระแท่นบรรทม ส่วนทางทิศตะวันออกประดิษฐานพระบรมรูปสมเด็จพระเจ้ากรุงธนบุรี ด้านหน้าพระวิหารประดิษฐานพระบรมรูปสมเด็จพระเจ้ากรุงธนบุรี
นอกเขตกำแพงแก้วด้านทิศตะวันออกเฉียงเหนือ มีหอระฆังย่อมุมไม้สิบสอง ซุ้มทรงบันแถลง ยอดทรงมณฑปและบัวกลุ่ม
๒. กลุ่มพระอุโบสถใหม่
สถาปัตยกรรมกลุ่มนี้ ตั้งอยู่ภายในเขตกำแพงแก้ว ประกอบด้วยพระอุโบสถ พระวิหารทิศ ๒ หลัง ตั้งอยู่เบื้องหน้าพระอุโบสถ มณฑปแปดเหลี่ยมยอดพระปรางค์ มีพะไลรอบ ๒ หลัง ตั้งอยู่ท้ายพระอุโบสถด้านทิศตะวันออกและตะวันตก
พระอุโบสถ เป็นอาคารก่ออิฐถือปูน รูปสี่เหลี่ยมผืนผ้า มีพะไลรอบ หลังคา ๒ ซ้อน ๒ ตับ เครื่องลำยองประกอบด้วยช่อฟ้า ใบระกา และหางหงส์ หน้าบันแกะสลักไม้ลงรักปิดทองประดับกระจกลายดอกพุดตานก้านแย่ง หน้าบันชั้นลดทำเป็นช่องหน้าต่าง ๒ บาน บานหน้าต่างลายพุ่มข้าวบิณฑ์ พื้นหน้าบันชั้นลดลายดอกลอยก้านแย่ง ซุ้มประตูหน้าต่างทรงบันแถลง ซุ้มเสมาทรงบันแถลงย่อมุมไม้สิบสอง ยอดทรงมณฑป มาลัยเถาทรงบัวกลุ่ม ภายในประดิษฐานพระพุทธรูปปางมารวิชัย ศิลปะสุโขทัย พระนามว่า พระพุทธชินวร
พระอุโบสถ เป็นอาคารก่ออิฐถือปูน รูปสี่เหลี่ยมผืนผ้า มีพะไลรอบ หลังคา ๒ ซ้อน ๒ ตับ เครื่องลำยองประกอบด้วยช่อฟ้า ใบระกา และหางหงส์ หน้าบันแกะสลักไม้ลงรักปิดทองประดับกระจกลายดอกพุดตานก้านแย่ง หน้าบันชั้นลดทำเป็นช่องหน้าต่าง ๒ บาน บานหน้าต่างลายพุ่มข้าวบิณฑ์ พื้นหน้าบันชั้นลดลายดอกลอยก้านแย่ง ซุ้มประตูหน้าต่างทรงบันแถลง ซุ้มเสมาทรงบันแถลงย่อมุมไม้สิบสอง ยอดทรงมณฑป มาลัยเถาทรงบัวกลุ่ม ภายในประดิษฐานพระพุทธรูปปางมารวิชัย ศิลปะสุโขทัย พระนามว่า พระพุทธชินวร

รูปพระอุโบสถ
ด้านหน้าพระอุโบสถประดิษฐานพระบรมรูปสมเด็จพระเจ้ากรุงธนบุรี พร้อมด้วยแท่นบูชา ศิลาจารึกทรงใบเสมาขนาดใหญ่ และบ่อน้ำโบราณ
ด้านทิศใต้ของพระอุโบสถ มีกลุ่มสถาปัตยกรรมตั้งเรียงกันบนฐานไพที ประกอบด้วย พระเจดีย์ย่อมุมไม้ยี่สิบ ฐานยักษ์และลิงแบก บัวปากระฆังและปล้องไฉนเป็นบัวกลุ่ม จำนวน ๓ องค์ และพระวิหารราย จำนวน ๔ องค์ เป็นอาคารก่ออิฐถือปูนขนาดเล็ก มีประตู ๑ บาน ไม่มีหน้าต่าง เครื่องบนเป็นเครื่องลำยอง มีทวยรองรับชายคา เสาอิงมีบัวหัวเสา หน้าบันไม้แกะสลักลงรักปิดทองประดับกระจกลายก้านแย่ง ภายในอาคารเขียนภาพจิตรกรรมฝาผนังเป็นภาพเล่าเรื่อง, ลายดอกไม้ร่วง และเครื่องบูชา พระวิหารรายหลังที่ ๑ ประดิษฐานพระพุทธรูปปางไสยาสน์ (ตะแคงขวา) พระวิหารรายหลังที่ ๒ ประดิษฐานพระพุทธรูปปางถวายพระเพลิง ประกอบด้วยรูปประติมากรรมพระสาวก ๓ องค์ และภาพจิตรกรรมรูปพระสาวกบนผนังด้านทิศเหนือ พระวิหารรายหลังที่ ๓ ประดิษฐานรอยพระพุทธบาทบนเขาสุมนกูฏ และพระวิหารรายหลังที่ ๔ ประดิษฐานพระพุทธรูปปางปรินิพพาน (ตะแคงซ้าย)


ภายในกำแพงแก้วพระอุโบสถ มีวิหารคดและศาลารายประดิษฐานพระพุทธรูปโดยรอบ ด้านนอกกำแพงแก้วทางด้านทิศเหนือ มีพระเจดีย์กลม ๒ องค์
กรมศิลปากร ประกาศขึ้นทะเบียนโบราณสถาน
๑.กำหนดบัญชีโบราณวัตถุสถาน ในราชกิจจานุเบกษา เล่มที่ ๖๖ ตอนที่ ๖๔ วันที่ ๒๒ พฤศจิกายน ๒๔๙๒
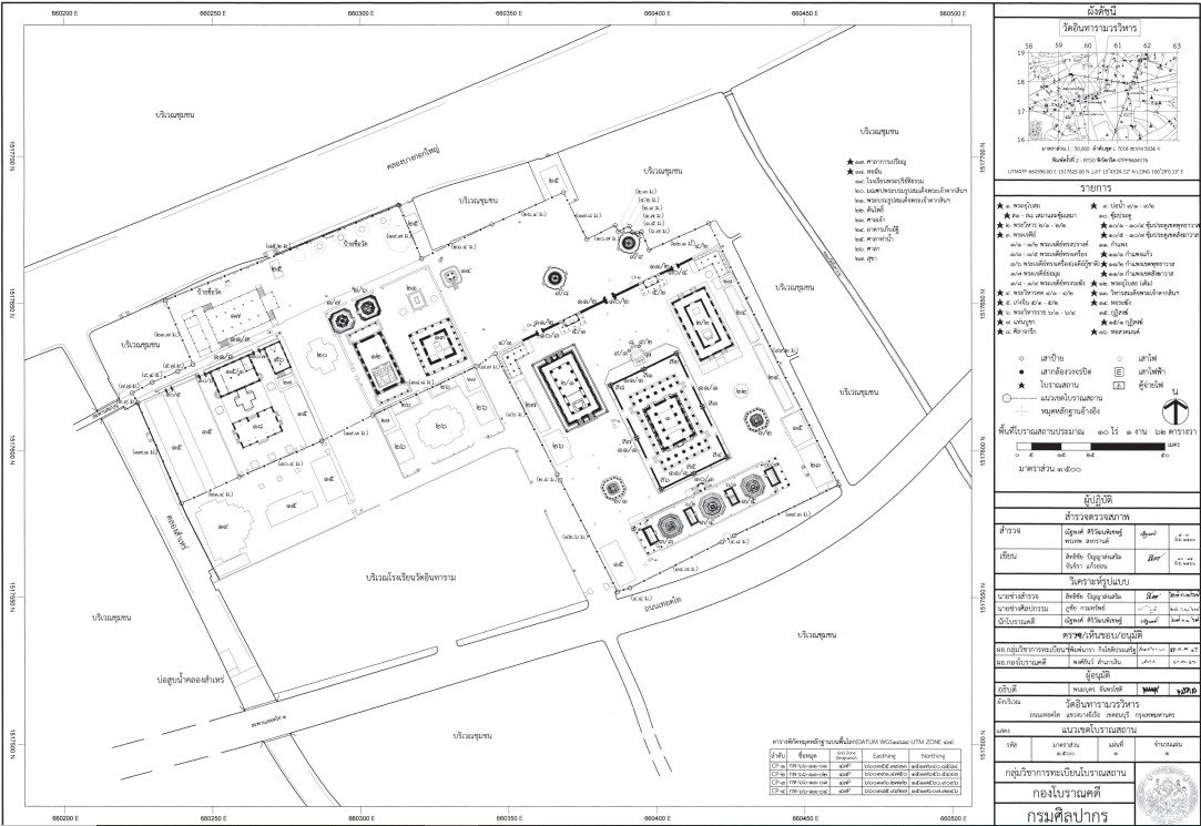
๒.ขึ้นทะเบียนโบราณสถานและกำหนดเขตที่ดินโบราณสถาน ในราชกิจจานุเบกษา เล่มที่ ๑๔๑ ตอนพิเศษ ๙๔ ง วันที่ ๒ เมษายน ๒๕๖๗
๒.ขึ้นทะเบียนโบราณสถานและกำหนดเขตที่ดินโบราณสถาน ในราชกิจจานุเบกษา เล่มที่ ๑๔๑ ตอนพิเศษ ๙๔ ง วันที่ ๒ เมษายน ๒๕๖๗

(จำนวนผู้เข้าชม 24676 ครั้ง)
สงวนลิขสิทธิ์ © 2563 กรมศิลปากร. กระทรวงวัฒนธรรม
-
นโยบายเว็บไซต์ |
มาตรฐาน |
นโยบายการคุ้มครองข้อมูลส่วนบุคคล
เว็บท่ากรมศิลปากร