ปราสาทเขาโล้น 1/3 : การดำเนินงานโบราณคดี
ปราสาทเขาโล้น ๑/๓ : การดำเนินงานโบราณคดี
โบราณสถานปราสาทเขาโล้น เดิมเป็นปราสาทก่อด้วยอิฐ ๑ หลัง ตั้งอยู่บนยอดเขาโล้นซึ่งเป็นภูเขาหินทรายในพื้นที่อำเภอตาพระยา จังหวัดสระแก้ว กรมศิลปากรโดยสำนักศิลปากรที่ ๕ ปราจีนบุรี ได้ดำเนินงานโบราณคดีในปีพุทธศักราช ๒๕๖๐ - ๒๕๖๑ และดำเนินการอนุรักษ์โบราณสถาน ในปีพุทธศักราช ๒๕๖๒ เพื่อศึกษารูปแบบสถาปัตยกรรม กำหนดอายุโบราณสถานทั้งด้วยวิธีเปรียบเทียบและวิธีทางวิทยาศาสตร์ รวมถึงดำเนินการเสริมความมั่นคงปราสาทประธานเพื่อรองรับการนำทับหลังมาติดตั้งในอนาคต
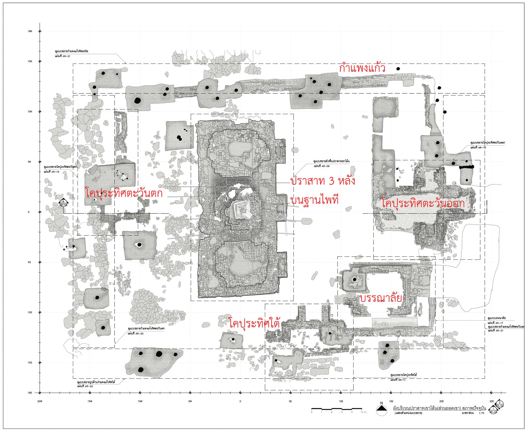
จากการดำเนินงานโบราณคดี ทำให้พบว่าปราสาทเขาโล้นเป็นโบราณสถานก่อสร้างด้วยอิฐที่มีการขัดผิวจนเรียบ ทำให้รอยต่อของอิฐแต่ละก้อนแนบสนิท อันเป็นวิธีการก่ออิฐที่เป็นเอกลักษณ์ของสถาปัตยกรรมเขมรโบราณสถานประกอบด้วยปราสาท ๓ หลัง ตั้งบนฐานไพทีเป็นจุดศูนย์กลางของโบราณสถาน ปัจจุบันคงเหลือแต่ปราสาทประธานเท่านั้น ปราสาทด้านทิศเหนือและทิศใต้พังทลายลงเหลือเพียงส่วนฐาน มีบรรณาลัยตั้งอยู่ด้านทิศตะวันออกเฉียงใต้ของปราสาทประธาน ล้อมรอบด้วยกำแพงแก้วที่มีโคปุระหรือซุ้มประตูอยู่ด้านทิศตะวันออก ทิศใต้และทิศตะวันตก
โบราณสถานตั้งอยู่บนยอดเขาซึ่งมีแนวคันกันดินทำจากหินทรายธรรมชาติที่นำมาวางเรียงกันเพื่อถมปรับพื้นที่บนยอดเขาสำหรับก่อสร้างโบราณสถาน และกันไม่ให้ดินที่นำมาถมปรับพื้นที่ไหลลงสู่พื้นด้านล่างอันจะทำให้โบราณสถานทรุดตัวได้ บริเวณด้านทิศตะวันออกของแนวคันกันดินมีการนำหินทรายธรรมชาติขนาดต่าง ๆ มาวางเรียงให้เป็นบันไดจากเชิงเขาขึ้นสู่ปราสาท
ผู้เขียน : นายสิขรินทร์ ศรีสุวิทธานนท์ (นักโบราณคดีชำนาญการ)
กลุ่มโบราณคดี สำนักศิลปากรที่ ๕ ปราจีนบุรี
#สำนักศิลปากรที่๕ปราจีนบุรี #กรมศิลปากร #กระทรวงวัฒนธรรม











(จำนวนผู้เข้าชม 2073 ครั้ง)