เว็บท่ากรมศิลปากร
Thai
English
กลุ่มเผยแพร่และประชาสัมพันธ์
หน้าหลัก
เกี่ยวกับหน่วยงาน
วิสัยทัศน์และพันธกิจ
ประวัติและบทบาทหน้าที่
โครงสร้างและบุคลากร
หน่วยงานในสังกัด
ข่าวและกิจกรรม
ข่าวกิจกรรม
ข่าวจัดซื้อจัดจ้าง
ข่าวรับสมัครงาน
คลังภาพกิจกรรม
ข่าวประชาสัมพันธ์
ปฏิทินกิจกรรม
คลังวิชาการ
ความรู้ทั่วไป
คลังภาพทรงคุณค่า
แผ่นพับกิจกรรม
วีดีทัศน์
นิทรรศการ
ประชาชนควรรู้
กฎหมายและระเบียบ
เรื่องน่ารู้
บริการ
เอกสารดาวน์โหลด
แบบสอบถาม
สอบถามบ่อย
ติดต่อเรา
หน้าแรก
คลังวิชาการ
ความรู้ทั่วไป
พระราชวังหลวงแห่งกรุงศรีอยุธยา
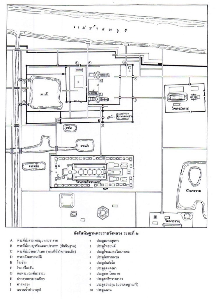
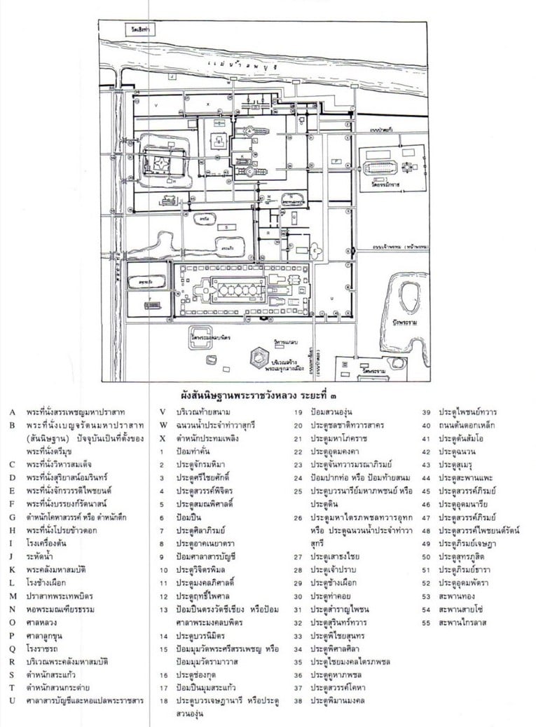
การวิเคราะห์และพัฒนาต่อยอดองค์ความรู้ทางประวัติศาสตร์โบราณคดีเป็นเรื่องสำคัญ โดยเฉพาะอย่างยิ่งองค์ความรู้ประวัติศาสตร์โบราณคดีสมัยกรุงศรีอยุธยาถือได้ว่าเป็นที่สนใจและถูกจับตานำมาต่อยอดโดยนักวิชาการอย่างกว้างขวาง จึงขอนำเสนอข้อมูลเกี่ยวกับ “พระราชวังหลวงแห่งกรุงศรีอยุธยา” ซึ่งเป็นการศึกษาและวิเคราะห์ตีความจากพระราชพงศาวดารฉบับต่างๆ และบันทึกชาวต่างชาติ ข้อมูลดังกล่าวเรียบเรียงโดย นายประทีป เพ็งตะโก ปัจจุบันดำรงตำแหน่ง อธิบดีกรมศิลปากร และถูกตีพิมพ์ไว้ในหนังสือ “สถาปัตยกรรมในสถาบันพระมหากษัตริย์” โดยสรุป พระราชวังหลวงแห่งกรุงศรีอยุธยามีพัฒนาการการใช้พื้นที่เป็น 3 ระยะ คือ
1. ระยะแรก ตั้งแต่รัชกาลสมเด็จพระรามาธิบดีที่ 1 (พระเจ้าอู่ทอง) ถึงรัชกาลสมเด็จพระบรมราชาธิราชที่ 2 รวม 98 ปี โดยเป็นช่วงที่พระราชวังหลวงตั้งอยู่บริเวณวัดพระศรีสรรเพชญ์ ช่วงแรกพระราชวังหลวงน่าจะประกอบด้วยพระที่นั่งอย่างน้อย 5 องค์ ที่ล้วนสร้างด้วยไม้ คือ - พระที่นั่งไพฑูรย์มหาปราสาท - พระที่นั่งไพชยนต์มหาปราสาท - พระที่นั่งไอศวรรย์มหาปราสาท และ - พระที่นั่งตรีมุข
2. ระยะที่สอง ตั้งแต่รัชกาลสมเด็จพระบรมไตรโลก ถึงรัชกาลสมเด็จพระอาทิตยวงศ์ รวม 182 ปี >> สมเด็จพระบรมไตรโลกนาถทรงยกเขตพระราชวังเดิมให้เป็นเขตพุทธาวาส และสร้างพระราชวังใหม่ชิดไปทางด้านเหนือริมแม่น้ำลพบุรี ในช่วงนี้จะประกอบไปด้วยพระที่นั่งองค์สำคัญได้แก่ - พระที่นั่งเบญจรัตนมหาปราสาท - พระที่นั่งสรรเพชญมหาปราสาท - พระที่นั่งวิหารสมเด็จ ทั้งนี้ ส่วนพระราชวังมีกำแพงกั้นกับวัดพระศรีสรรเพชญ์
3. ระยะที่สาม ตั้งแต่รัชกาลของสมเด็จพระเจ้าปราสาททอง ถึงสมเด็จพระเจ้าเอกทัศน์ รวม 137 ปี เป็นช่วงที่บ้านเมืองรุ่งเรืองอย่างมาก มีการขยายพระราชวังออกไปทุกทิศทุกทาง ด้านเหนือจรดกำแพงเมือง ด้านตะวันออกจรดท้ายวัดธรรมิกราช ด้านใต้จรดวัดพระศรีสรรเพชญ์ พระราชวังมีกำแพงสูง 4 เมตร มีป้อม 8 ป้อม ประตูบก 20 ประตู ประตูน้ำ 2 ประตู และช่องกุด 1 ช่อง ภายในพระราชวังประกอบด้วย - พระที่นั่งสุริยาสน์อมรินทร์ตั้งอยู่ด้านเหนือสุด - พระคลังมหาสมบัติ (ด้านใต้ลงมา) - พระที่นี่งจักรวรรดิ์ไพชยนต์ตั้งอยู่พระราชฐานชั้นนอกเป็นที่ประทับทอดพระเนตรฝึกพลสวนสนาม - พระที่นั่งบรรยงก์รัตนาสน์เป็นที่ประทับท้ายพระราชวัง - พระตำหนักตึกเป็นที่ประทับของพระมเหสี - พระที่นั่งทรงปืน - ตำหนักสวนกระต่าย - ตำหนักสระแก้ว - ตำหนักศาลาลวด - ถังประปา
จากข้อมูลดังกล่าวจึงได้มีการวิเคราะห์และจัดทำผังสันนิษฐานของพระราชวังหลวงในระยะต่างๆ ไว้ด้วย >> ทั้งนี้ สรุปข้อมูลมาจาก หนังสือสถาปัตยกรรมในสถาบันพระมหากษัตริย์ผู้สนใจสามารถอ่านต่อได้ที่ https://pubhtml5.com/iytc/tiym
หากมีการนำข้อมูลการศึกษาวิเคราะห์ไปต่อยอด การอ้างอิงข้อมูลพื้นฐานเป็นมารยาทที่พึงกระทำในแวดวงนักวิชาการ
----------------------------------------------------------------------
ที่มาของข้อมูล : อุทยานประวัติศาสตร์ พระนครศรีอยุธยา https://www.facebook.com/AY.HI.PARK/posts/1395881527427348
----------------------------------------------------------------------
(จำนวนผู้เข้าชม 13942 ครั้ง)
สงวนลิขสิทธิ์ © 2563 กรมศิลปากร. กระทรวงวัฒนธรรม -
นโยบายเว็บไซต์
|
มาตรฐาน
|
นโยบายการคุ้มครองข้อมูลส่วนบุคคล